简介
楼梯,是建筑空间中用于竖向交通的建筑构件。
有那么一种建筑部件,它是用于楼层之间垂直交通的,由连续行走的梯级,组合有休息平台,还配备维护安全所用的栏杆亦或是栏板、扶手,以及与之相应的支托结构共同构成,这在《民用建筑设计通则》GB50352 - 2005当中便有规定。
基本构成

楼层平台,是楼梯的一部分,梯段也是楼梯的一部分,休息平台同样是楼梯的一部分,防护结构仍是楼梯的一部分,梯井还是楼梯的一部分。

用于楼梯的,表现为平面形式,被叫做示意图那类展示内容,是《民用建筑设计通则》GB50352 - 2005里涵盖的东西。
具有楼梯的“跑”数之称的梯段数,视其方向及组合方式而言 ,被划分 ,有成为单跑形式之举 ,还有成为平行多跑形式之举 ,以及折行多跑形式之举 ,甚至螺旋与异形楼梯形式之举 ,然而螺旋与异形楼梯 ,在疏散用途方面 ,是不适合被采用的。

楼梯的形式-《建筑设计资料集》第三版
踏步是梯段的基本单元,一个踏步通常经由踏面与踢面构成,踏面乃水平面且一般设有防滑条,踢面一般垂直于踏面,不过也能够与踏面成锐角,或者不设置踢面。然而有的楼梯不准采纳不存在踢面的楼梯情况,用以防止卡住使用者,像是无障碍楼梯、老年人照料场所的楼梯之类。

楼梯的踏面与踢面
遵照中华民族的行为规律,国家《住宅厨房卫生间排气道及通风道》等多个等级国家标准或者行业设计程序都针对楼梯组件的容积、数目以及运用形式给出了基础规定:
不能连续踏步超过十八级,得设置休息平台,为何呢?是由于经过了实验,超过十八级的那些连续踏步乃是绝大多数人的连续步行极限。
踏步数量不得少于两级,不然的话就应当设置缓坡。这是由于少于三级不容易引起人的注意,进而有可能造成踏空事故。
要对疏散人数予以保证,梯段宽度就必须存在最小值,一般计算的时候,把550mm当作每股疏散人流宽度来取值,用于疏散的楼梯的梯段净宽一般情况不得小于两股人流,也就是1100mm宽,以此在保证人员安全疏散之际,消防人员能够逆行展开扑救,特殊场所像医院等,在计算最小疏散净宽时,还得将携带器具与手臂摆幅等宽度考虑进去,也有可能多于两股人流,具体宽度数据依据疏散人数计算而得出,并且不得小于防火规范。

民用建筑设计通则的条文说明里提到的疏散宽度,其标准编号为GB50352 - 2005。
因为要确保使用者上下楼层时的安全,所以踏步的踏面宽度不能小于特定的长度,这个长度会依据使用的场所以及人群的差异而有所不同。比如说,在室外的情况下,它最小是300mm宽 ; 在公共建筑里面呢,它适宜是300mm宽 ; 在托幼建筑当中,它不能小于260mm宽 ; 在住宅建筑里,它不得小于275mm宽 ; 用于疏散的楼梯,它不宜小于280mm宽等等。
同时,踏步的踢面高度存在限制,这个限制并非固定不变,它会因使用场所的差异而有所不同,也会因人群的不同而有所区别。比如,在室外环境下,其最高高度为150mm;对于公共建筑而言,较为适宜的高度是150mm;在托幼建筑中,该高度不应大于130mm;而对于住宅来说,不得大于165mm等。
2r + g = 水平跨步距离公式,其中r是踏步高度,g是踏步宽度,成人与儿童不同,男性和女性有差异,青壮年跟老年人不一样,一般处于560~630mm范围之内,少年儿童大概是560mm左右,成人平均约为600mm左右,这来自《民用建筑设计通则》条文说明。
楼梯与各层地面、楼板或者屋面等等的水平面互相连接的那个水平构件是楼层平台,它的最小净宽不可以小于梯段宽度。
休息平台是楼梯中部用于人员休息的水平界面,净宽要求同上。

垂直的栏杆,出自《民用建筑设计通则》条文说明,编号为GB50352 - 2005。
楼梯要设置栏杆、栏板等垂直于踏面的固定构件,用来避免人员出现掉落摔伤的情况,它的净空高度要大于900mm,当超过500mm的水平长度时,该区域必须高于1050mm 也就是要高于人体位于直立站立时的重心位置 并且要采取人员无法攀爬的一些相关举措 垂直杆件之间的净距不可以大于110mm这个参照婴儿头部尺寸 用来防止儿童发生意外坠落。

将栏杆高度进行计算,这一计算依据《民用建筑设计通则》GB50352 - 2005。
梯井,是处于两个不一样梯段之间的,那种空隙,它通常会贯通整个楼梯。梯井的净宽,不适合大于200mm,不然的话,就应该采取防护措施,用来防止幼儿坠落;然而,在公共建筑里,需要设置净宽不少于150mm的梯井,以便在灭火作业的时候,能够架设消防水管。
与此同时,与栏杆搭配设置的扶手可供抓握,会在让使用者觉得具备安全感的同一时候,进而拥有起到缓解疲劳以及能够用以辅助行走的功效。鉴于此,对于超出一定宽度的楼梯而言,除了要在边界处设置扶手之外,还必定需要在梯段的中间给予设置扶手。
在无障碍楼梯那里,扶手于第一级踏步处,需要伸出一定长度的水平段,并且在最后一级踏步处,同样也要伸出一定长度的水平段,如此才能满足残障人员抓握的需求。
将儿童扶手设置于托幼建筑等供幼儿使用的场所,其高度为600mm,这是有必需的。
结构材料
现浇或装配成的楼梯,一般是用钢筋混凝土组件制成的。另外,常用的还有金属楼梯,比如钢楼梯。过去,木制和石制楼梯也曾是常用的。
现浇钢筋混凝土楼梯,存在梁承式这种结构型式,存在折板式这种结构型式,还存在梁悬臂式等多种结构型式。

-《建筑设计资料集》第三版

-《建筑设计资料集》第三版

-《建筑设计资料集》第三版
预制装配式的钢筋混凝土楼梯,存在着墙承式这种结构型式,还有梁承式这种结构型式,也有墙悬臂式这种结构型式。

-《建筑设计资料集》第三版
楼梯不参与建筑结构的承重,属于自承重的结构。
楼梯的基层材料,其做法是像上面所说的那样,而面层通常会用石板、瓷砖等进行装饰,美观、整洁以及防滑是选用时遵循的原则。
使用布置
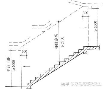
所有楼梯在竖向重叠的时候,必须保证净空高度,以免影响使用。

示意楼梯的净空高度,以及相关要求,来自于《民用建筑设计通则》GB50352 - 2005。
建筑工程里,需规避出现的问题是,楼梯的结构构件,也就是梁等,在休息平台处的净空高度不足,进而导致使用时产生碰撞。
楼梯依据其所在场所是不是有墙体跟屋顶,划分成室外楼梯与室内楼梯,室内楼梯存有楼梯间,楼梯间的封闭程度判定其是开敞楼梯间或者封闭楼梯间,带有防烟前室的封闭楼梯间称作防烟楼梯间。

不一样种类的疏散楼梯间,以及与之匹配的适用情形,出自《民用建筑防火设计图示综合解析》。
楼梯通常用作垂直方向的疏散通道,基于保护人群于火灾中的疏散安全考量,开敞楼梯间、封闭楼梯间以及防烟楼梯间,它们适用的建筑高度渐趋增高,超过33m(住宅)或者32m(公共建筑)的高层建筑定然要设置防烟楼梯间。
楼梯间若为防烟楼梯间,那其具有封闭的防烟前室,在首层以上,人要进入楼梯间,就必须先通过前室,在首层或者顶层前往安全出口,也就是室外疏散场地或者屋顶救援平台时,也必得经过前室来通行。防烟前室存在最小尺寸的要求,建筑构件比如一些墙、楼板等,有着耐火等级以及时间方面的需求,疏散门是防火门,其开启方向必定得朝向的是疏散方向。防烟前室要有正压送风装置,以此来保障空气质量,如此方能不受火灾时毒烟毒气对其产生的不好影响。
适用于低层多层建筑的开敞楼梯间,鼓励采用自然通风,且对有通风窗口比例有着要求。
地上部分的疏散楼梯,和地下部分的疏散楼梯,两者之间必须断开,不然的话,在逃生的时候,就会出现误入地下空间的情况。
参考资料
《民用建筑设计通则》GB50352-2005,含条文说明
《建筑设计防火规范》,编号为GB50016 - 2014,此为2018年修订版本的规范。
《建筑设计资料集》第三版-建筑总论
《民用建筑防火设计图示综合解析》
